首页/ 资讯/ 镁行业资讯
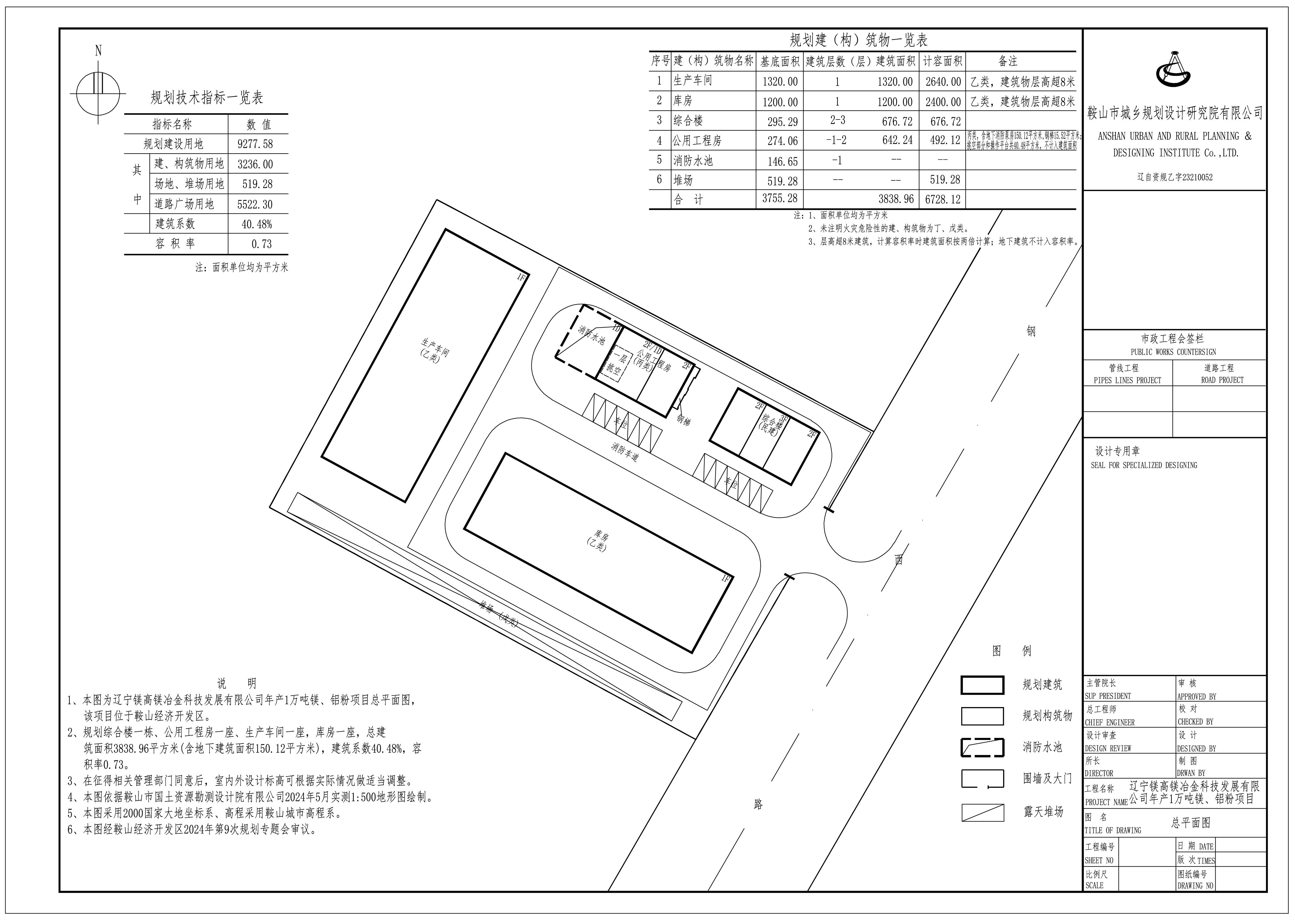
关于核发辽宁镁高镁冶金科技发展有限公司年产1万吨镁、铝粉项目《建设工程规划许可证》的公告
发表时间:2026-02-09

据《中华人民共和国城乡规划法》第四十条的有关规定,已依法核发辽宁镁高镁冶金科技发展有限公司年产1万吨镁、铝粉项目《建设工程规划许可证》。现将有关情况公告如下:


许可事项:建设工程规划许可证


许可证号:建字第2103032026GG0001634号


项目名称:年产1万吨镁、铝粉项目


建设位置:鞍山经济开发区钢西路西、富唐化工北


建设单位:辽宁镁高镁冶金科技发展有限公司

咨询热线:
400-110-9771
客服微信:
官方公众号: