首页/ 资讯/ 其他行业资讯
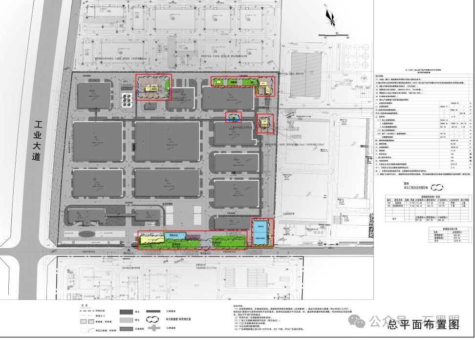
硅宝(眉山)年产5万吨硅碳负极材料建设项目规划设计方案的批后公布
发表时间:2025-08-28

硅宝(眉山)新能源材料有限公司5万吨年锂电池用硅碳负极材料及专用粘合剂项目配套设施建设项目规划设计方案已经眉山市彭山区规划和自然资源局依法定程序审批。为保证规划的公开、透明,根据有关规定,现对该规划设计方案总平面图进行批后公布。


2024年度,公司1000吨/年硅碳负极材料中试线稳定运行,累计实现百吨级销售。公司5万吨/年锂电池用硅碳负极材料及专用粘合剂项目实施顺利,已建成3000吨/年锂电池用硅碳负极生产线并于今年投产使用。


咨询热线:
400-110-9771
客服微信:
官方公众号: